blattwerk
  • Aktuelles
  • Blattwerk
    • Stallmann persönlich
    • Zusammenarbeit
    • Lehraufträge
  • Spektrum
    • Generalplanung
    • Freiraum
    • Freiflächen-Management
    • Sachverständiger
  • Projekte
    • Internationales
    • Projektsteuerung
    • Rahmenplanungen
    • Studien
    • Kuranlagen
    • Schulen
    • Stadträume
    • Hausgärten
  • Publikationen
  • Startseite
  • Kontakt
  • Impressum & Haftungshinweis
  • 2004 | Rahmenplanung Friedrichroda

    Bearbeitung: 2004 — 2006 
    Ausdehnung: ca. 95 ha
    Bauherr: Stadt Friedrichroda
    Status: Denkmalschutz


    Ansatz

    An die Stadt Friedrichroda, am Nordrand des Thüringer Waldes gelegen, grenzt nördlich der denkmalgeschützte Außenpark Reinhardsbrunn. Dieser Park wurde zwischen 1825 bis 1835 durch den Hofgärtner Eulefeld im Auftrag Ernst I. von Sachsen-Coburg und Gotha im Stil des englischen Landschaftsparks angelegt. Diese Parkanlage war dadurch gekennzeichnet, dass sie als Teil des Raumes zwischen Schnepfenthal, Tabarz und Friedrichroda landwirtschaftlicher Nutzung unterlag.

    Gestalterisch wurde durch gekonnte Betonung bestehender naturräumlicher Gegebenheiten ein Kleinod am Nordrand des Thüringer Waldes geschaffen. Heute noch lassen sich anhand des durch den Hofgärtner Nusspickel 1904 erarbeiteten Situationsplanes des „Herzoglichen Parkes Reinhardsbrunn“ die Strukturen ablesen. Überformungen und geringe Pflege drohen, den Park verschwinden zu lassen.

    Der Rahmenplan arbeitet Strukturen heraus und gibt erste Handlungsempfehlungen, um den drohenden Verfall zu stoppen.

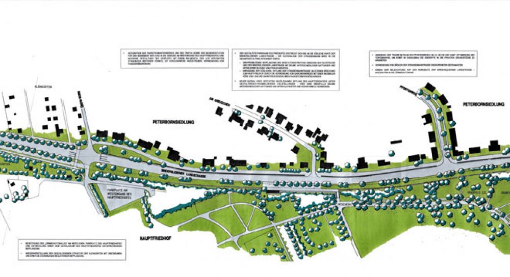
  • 2003 | Binderslebener Landstraße — Rahmenplanung

    Bearbeitung: 2003 in Zusammenarbeit mit Jürgen Schiffler, Augsburg
    Ausdehnung: ca. 4,0 km
    Bauherr: Erfurter Verkehrsbetriebe AG


    Ansatz

    Mit der Erweiterung des Erfurter Straßenbahnnetzes zur Erfurter Stadtbahn war deren Ausbau nach Erfurt-Bindersleben vorgesehen. Die neue Straßenbahnverbindung sollte den Hauptbahnhof über die bis dahin bestehende Endhaltestelle am denkmalgeschützten Hauptfriedhof der Stadt Erfurt mit dem Flughafen Erfurt verknüpfen.

    Dabei verläuft die Strecke durch einen differenzierten Stadtraum. Es wurden auf die jeweiligen Stadträume bezogene Planungsansätze erarbeitet. So konnte die Stadtbahnlinie bereits kurz nach der Fertigstellung eine hohe Akzeptanz erwerben.

Kontakt | Impressum & Datenschutzerklärung | AGB | Copyright © 2004 - 2026 blattwerk
DE | EN | RU